SONSTIGE BAUTEN
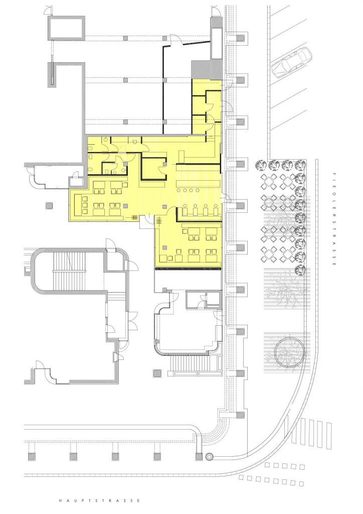
Als Ersatz für die Kantine des Magistrats soll in verschiedene, zur Verfügung gestellte Bestandsbereiche des Neuen Rathauses ein neues Lokal eingebaut werden, welches sowohl der Laufkundschaft als auch der Beamtenschaft des Magistrats zur Verfügung stehen soll.
Die vollverglaste Eingangsfassade zur Fiedlerstraße hin sorgt für einladende Einblicke ins Lokal und Ausblicke aufs Straßengeschehen. Der offene Grundriss erfährt eine funktionelle Zonierung in Bar- und Küchenbereich mit den zugehörigen Nebenräumen, Raucher- Nichtraucherzone und Sanitärräumlichkeiten. Gegenüber der Bar, im unmittelbaren Eingangsbereich, begleitet ein Imbissbereich mit erhöhter Sitzbank und Stehtischen den Weg durchs Lokal. Durch das Öffnen einer großzügigen Glasschiebetür verschmilzt der Bar- undImbissbereich mit dem vorgelagerten „Schanigarten“. Der räumlich separierte Nichtraucherbereich bleibt durch Vollverglasung und Glastür im optischen Fluss.
Die gestalterische Farbpalette ist auf drei Farben beschränkt – cremefarbiges Leder für Sitzgelegenheiten, creme- und rotfarbige Gardinen und Wände, schwarz lasiertes Holz für Bar und Tische und schwarzer, einheitlich durchlaufender, fugenloser Boden aus Bitumen-Terrazzo mit cremefarbiger Körnung.







