BAUTRÄGERPROJEKTE + SOZIALER WOHNBAU
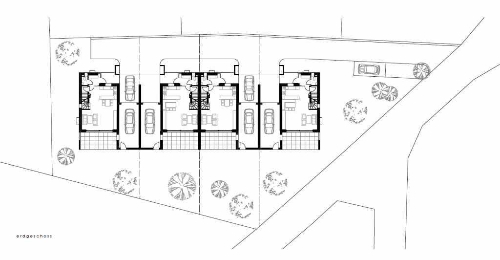
Das ebene Grundstück in Zentrumslage der Stadt Marchtrenk ist im Südosten über die Lindenstraße aufgeschlossen, von der aus eine private Wohnstraße zu den vier geplanten Häusern führt. Jeweils zwei Häuser sind durch hintereinander liegende Carpots und Garagen getrennt. Durch Spiegelung der Häuser ergeben sich in der Mitte der Wohnanlage liegend zwei Reihenhäuser (Doppelhaus) und an den Enden der Hauszeile zwei freistehende Eckhäuser. Diese Anordnung kommt dem Charakter des freistehenden Einfamilienhauses schon sehr nahe und ermöglicht maximale Intimität für die Bewohner.
Der vom Obergeschoß überdeckte, mit dem Carport und der Garage in direkter Verbindung stehende, rückspringende Hauseingang führt in die Nebenzone des Hauses mit Garderobe und WC. Eine Glaskonstruktion lenkt den Blick in den offenen Koch-Ess-Wohnbereich bis über die Loggia und den Garten, wodurch trotz der Kleinheit der Häuser ein äußerst großzügiges Raumerlebnis vermittelt wird. Vom Ess-Wohnbereich führt eine Treppe ins Obergeschoß mit Elternschlafzimmer, zwei Kinderzimmern, Bad und WC. Gegenüber der offenen, U-förmigen Küche gelangt man direkt zur Kellertreppe. Jedes Haus ist vollunterkellert und verfügt über eine Wohnfläche von 107 m² und einer 19 m² großen Loggia.







