WETTBEWERBE / SONSTIGE BAUTEN
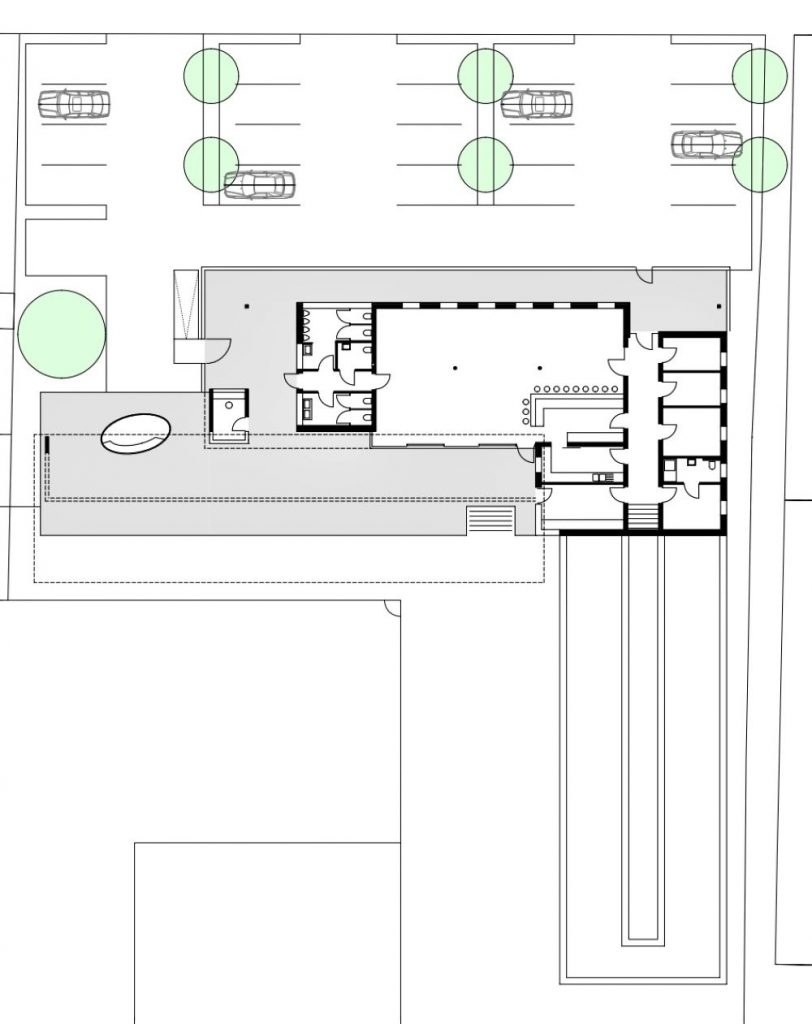
Eine Entwurfsvorgabe war die Erhaltung des alten Clubhauses während der Bauphase. Für die Wahl des Standortes war einerseits diese Vorgabe ausschlaggebend, andererseits die Lage der bestehenden Holztribüne und die vorhandene Topographie des Ortes.
Die Topographie, also die Nutzung der natürlichen Geländekante ermöglichte es uns, den Baukörper in seiner Höhenentwicklung zu staffeln, d. h. den Kabinentrakt um eine halbe Geschoßhöhe tiefer zu legen. Dadurch verlassen bzw. betreten die Spieler den Kabinentrakt auf dem Niveau des Spielfeldes. Der um eine halbe Geschoßhöhe über dem Spielfeldniveau liegende Eingangs- und Zuschauerbereich mit der weitläufigen Terrasse, dem Vereinslokal und der freistehenden Getränkebar, im Zusammenspiel mit der sehr filigranen und luftigen Konstruktion der Überdachung und der Glasbrüstung ermöglichen einen uneingeschränkten Blick über das gesamte Spielfeld. Der Kontext zwischen bestehender alter Holztribüne und der neuen Überdachung der Terrasse war ein weiterer wichtiger Punkt unseres Entwurfsansatzes – vielleicht ergibt sich in der Zukunft die Möglichkeit des Abbruchs der alten Tribüne, um dann das neue, im Vereinsrot gehaltene Flugdach bis ans andere Ende des Fußballfeldes zu erweitern.












