SONSTIGE BAUTEN + ÖFFENTLICHE BAUTEN
Durch die Schaffung einer zentralen Anlaufstelle des Magistrates Linz in Form des Teleservice-Centers mussten funktionell und gestalterisch adäquate räumliche Rahmenbedingungen geschaffen werden, um den sehr speziellen und anspruchsvollen Arbeitsmodi zu entsprechen. Es soll einerseits eine Bürgerservicefunktion erfüllen, andererseits auch in Katastrophenfällen als effizienter Anfragepool und vor allem Lösungsproduzent bereitstehen.
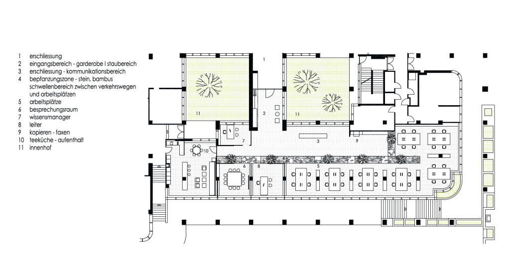
Das neue Teleservice-Center wurde in einem bestehenden Bereich des neuen Rathauses untergebracht. Durch das Entfernen der Zwischenwände öffnet sich der Großraum zur Gänze nach Westen und Süden. Das bestehende durchlaufende Fensterband ist somit in seiner ganzen Länge spürbar und lässt den Raum hell und großzügig erscheinen.
Der Großraum wurde in drei Bereiche zoniert:
– Erschließungsbereich entlang des bestehenden Innenhofes für Kommunikation, Aufenthalt, Infrastruktur (kopieren, faxen, drucken), etc.
– Schwellenbereich als Trennzone in Form eines Pflanzstreifens.
– Erhöhter Arbeitsbereich entlang der Fensterfront.
Als primäre Zone wurde der intensiv genutzte Arbeitsbereich, der großzügig geöffneten Fensterfront im Süden zugeordnet. Speziell gefertigte Arbeitstische ermöglichen eine flexible Aufstockung der Arbeitsgruppen bei komplexen Aufgabenstellungen. Um die frei auskragende Platte, auf einen mittigen „Stützenfuß“ liegend, der nicht nur statisch funktioniert, sondern auch die Versorgungsleitungen aufnimmt, sind grundsätzlich vier Arbeitsplätze gruppiert, die auf sechs erweitert werden können, da konventionelle (störende) Tischbeine fehlen. Durch das Fensterband erhält die Arbeitszone eine natürliche Belichtung – die abgehängte weiße Gipskartonlochdecke verstärkt diesen Effekt durch Reflexion.
Entlang seiner Längsachse wird dieser Bereich um ein Leiterbüro und einen Besprechungsraum ergänzt. Parallel dazu wurde das Wissensmanagerbüro platziert. Glaswände schotten diese Räumlichkeiten baulich und akustisch ab, nicht aber optisch. Der transparente, offen-demokratische Charakter der Räume als auch der Arbeitsmodalität bleibt erhalten. Nach Norden hin ist dieser Bereich durch einen „Schleier“ aus Bambus der als Sicht-, Luft- und Lärmfilter fungiert subtil begrenzt. Dieser Schwellenbereich in Form von streng geometrisch ausgebildeten Kiesbeeten mit Bambusbepflanzung wird durch die gleichzeitige Ausbildung eines Podestes noch verstärkt. Das Podest in Form eines „Doppelbodens“ wird sehr pragmatisch als „Versteck“ für diverse Verkabelungen und Anschlüsse genutzt.
Die sich ergebende Stufe wird im Stützenachsraster zwischen den Arbeitsgruppen durch Glasbrücken überwunden, um das geometrische Erscheinungsbild des Pflanzstreifens nicht zu unterbrechen. Dieser, von japanischen Gärten inspirierte, Pflanzenfilter funktioniert im Wortsinn luftreinigend – der Sauerstoffgehalt der Raumluft steigt, die Luftfeuchte im Winter sinkt nicht unter 40 Prozent, Elektrosmog wird neutralisiert. Als lebendiger Sichtfilter trennt er den Arbeitsbereich von der sogenannten Kommunikations- und Erschließungszone. Bereiche zum Kopieren/Faxen und ein im Westen separierter Aufenthaltsraum komplettieren diese Zone. Dieser Ort der Erholung (die sehr anstrengende Arbeit der Agents erfordert alle 50 Minuten eine Regenrationspause) wurde am nördlichen Innenhof angeordnet, da dies der einzige Raum mit der Möglichkeit der Querdurchlüftung ist. Er subsummiert die Funktion der Teeküche, des Aufenthaltsraumes zum Essen, Erholen und privaten Austausch. Um die Grundrissanalyse abzuschließen sei noch erwähnt, dass selbst die Erschließungs- und Garderobenzone attraktiv dem östlichen Innenhof angegliedert ist und damit Licht und Ausblick anbietet. Das optisch auffallendste Element des gesamten Teleservice-Centers ist die orange-leuchtende Teppichausstattung am Boden und den Wänden, welche funktionell dem Schallschutz geschuldet ist, emotional aber eine freundliche anregende Atmosphäre schafft. Laut Aussage einer Magistratsmitarbeiterin „geht in diesem Büro die Sonne auf“ – eine Bemerkung, welche genau jenes Bemühen bestätigt einen größtmöglichen Behaglichkeitsstatus zu erreichen, um die Fluktuation der Mitarbeiter zu senken bzw. eventuell sogar auszuschalten, da die Ausbildung und Einführung der Agents äußerst zeit- und kostenintensiv ist.












