WETTBEWERBE / ÖFFENTLICHE BAUTEN
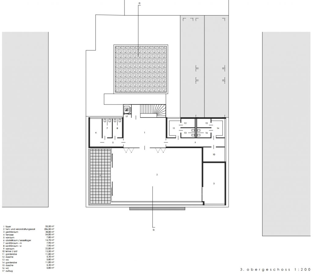
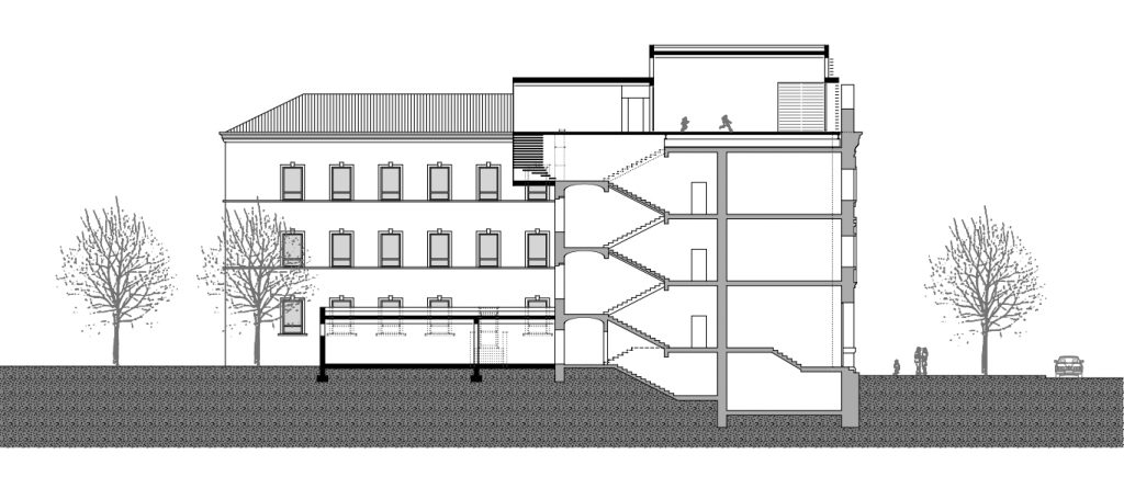
Die gewünschte Errichtung eines Turnsaales samt erforderlicher Nebenräumlichkeiten erfordert einen erheblichen Platzbedarf. Die Erhebung des Landes Niederösterreich ergab den Bedarf von nur acht Klassen gegenüber den vorhandenen neun Klassen. Somit bestand die Möglichkeit, die gewünschte Bibliothek und die Zentralgarderobe im Bestandsobjekt unterzubringen. Da die vorhandenen Freiflächen und Grünräume in äußerst geringem Ausmaß vorhanden sind, haben wir uns aus Gründen der Erhaltung der Freiräume, aus technischer und architektonischer Sicht, für eine Aufstockung des bestehenden Hauptgebäudes entschieden.
Die tragende Struktur ist in Leichtbauweise (Stahlkonstruktion) in Form von Primär- und Sekundärträgern geplant, welche die Lasten gleichmäßig über die massiven Bestandswände abtragen. Durch diese Konstruktion entsteht ein geräumiger Doppel- oder Zwischenboden, der sämtliche Ver- und Entsorgungen der Haustechnik aufnimmt. Schalltechnisch kann diese Konstruktion von den darunter liegenden Räumlichkeiten völlig entkoppelt werden. Erschlossen wird der Turnsaal über das bestehende Haupttreppenhaus und einen neu eingebauten Lift um das gesamte Gebäude behindertengerecht zu gestalten. Der „aufgesetzte“ Turnsaal zeigt sich als klar geschnittene Box, deren Glasfassadenflächen durch horizontale Lamellen (Sonnenschutz?) fein strukturiert gegliedert. Die Lage erzeugt eine einzigartige Aussichtssituation über die Stadt bzw. weite Bereiche des Mostviertels.
Die Vorteile des Entwurfs bestehen zusammengefasst in folgenden Punkten:
- Der gesamte Innenhof und die Grünfläche bleiben erhalten und können einer notwendigen Gestaltung unterzogen werden.
- Der Schulbetrieb kann beinahe ungestört geführt werden, da nur geringe Eingriffe in die vorhandene Substanz erforderlich sind.
- Geringe Bauzeit durch hohen Vorfertigungsgrad.
- Die Haustechnik wird im neu geschaffenen Zwischenboden geführt werden. Die Ver- und Entsorgung erfolgt über die genau darunter liegenden Installationsschächte in den bestehenden Sanitäranlagen. Der Anschluss ans bestehende Kanalnetz ist also völlig unproblematisch.
- Ein nicht zu unterschätzender Mehrwert der Architektur im Allgemeinen und für kleinere Veranstaltungen wie Bürgermeisterempfänge, Neujahrsempfänge, Wirtschaftsempfänge, Diskussionsabende, usw.









